+3
Solaize (69360)

Maison 5 pièce(s) 4 chambre(s) 109.25 m²

1
1
110 m²
Réf V10000077

JUNE IMMOBILIER est ravie de vous proposer en avant-première cette maison neuve au centre du village prisé de Solaize !

Opportunité RARE sur le secteur et à deux pas des commerces, nous vous proposons d'acquérir une maison de 109,25 m2 avec des prestations neuves et haut de gamme sur une parcelle de 110m2 bien agencée !

Et surtout, avec l'achat de cette maison, un leasing d'une FIAT 500 électrique blanche classique vous sera offert sur 37 mois avec sa borne électrique installée sur les 2 places de stationnement privatives...

(Conditions : borne 22kw / dans la limite de 10000km/an / bonus éco en apport sous réserve d'acception par FIAT / assurance non comprise)

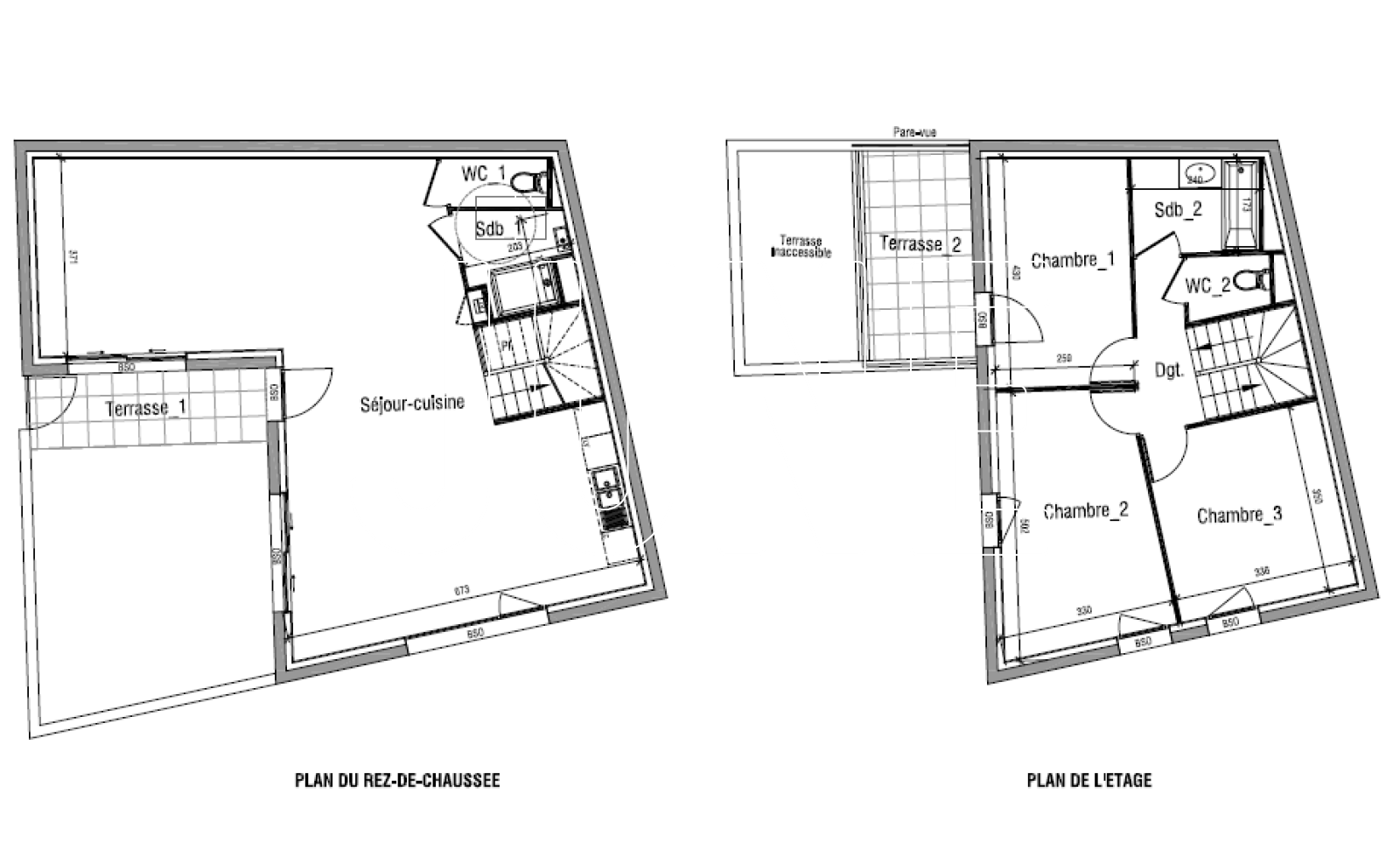
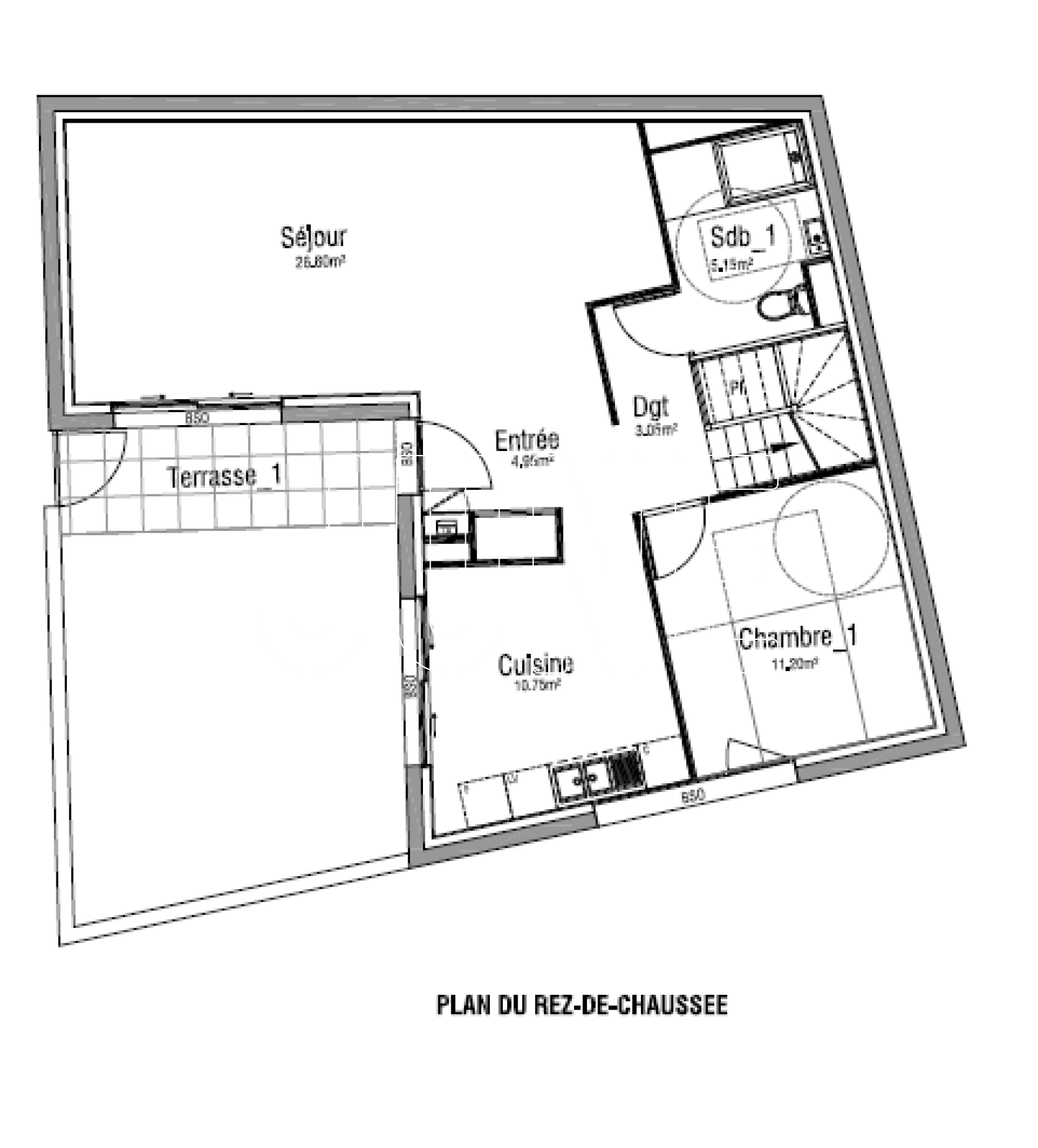
Avec ce jardinet bien orienté SUD-OUEST et ses deux terrasses, vous aurez accès au rez-de-chaussée à une pièce de vie de près de 59 m2 environ ouvrant sur la jardin et une terrasse dallée, à une salle d'eau et un WC. Possibilité de créer une chambre au rez-de-chaussée ! A l'étage, 3 autres chambres et une deuxième salle de bain + WC

Belles prestations générales : menuiseries ALU avec volets roulants ou BSO, façade finition grattée teinte "blanc lumière", tuiles terre cuite, terrasses en dalle grès cerame, pompe à chaleur AIR/EAU avec plancher chauffant au RDC + radiateurs étage, sanitaires de qualité avec WC suspendu , etc.

Non soumis au DPE - Honoraires charge vendeurs

JUNE IMMOBILIER - 3, route de Marennes 69970 Chaponnay

Bilan énergétique

Diagnostics énergetiques
A propos de ce bien Caractéristiques de ce bien
  • Surface 109,25 m²
  • carrez 109,25 m²
  • terrain 110 m²
  • séjour 46,40 m²
  • 4 chambre(s)
  • 1 salle(s) de bain
  • 1 salle(s) d'eau
  • cuisine américaine
  • exposition Ouest
  • 1 côté(s) mitoyen(s)
  • 2 niveau(x)
  • terrasse
  • piscinable

Composition

Composition de ce bien

Rez-de-chaussée

  • salon/sejour 58.65 m²
  • salle de bain 3.35 m²
  • WC 1.70 m²

Etage 1

  • chambre 11.05 m²
  • chambre 13.60 m²
  • chambre 11.80 m²
  • salle de bain 4.20 m²
  • WC 1.65 m²
  • dégagement 3.25 m²

Financier

Informations financières
Les honoraires d'agence seront intégralement à la charge du vendeur  

Autour du bien

Découvrez le quartier

Simulation

Calcul des mensualités
* Champs obligatoires
June Immobilier Agence